Elaboração e Homologação de Projetos Elétricos

Elaboração e Homologação de Projetos Elétricos

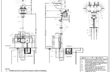
Nesse setor iniciamos o desenvolvimento prático em suprir a necessidade de nossos clientes. Na elaboração do projeto, embasado em normas técnicas brasileiras, colocamos todas informações bem dimensionadas à obra. Calculamos a quantidade de materiais a serem utilizados e entregamos com precisão o local de aplicação.

Segmentos de Projetos:

  • Residenciais, Comerciais e Industriais,
  • Zona Rural,
  • Subestação de energia,
  • SPDA.

Nós usamos cookies e outras tecnologias semelhantes para melhorar a sua experiência em nosso site. Ao navegar em nosso site, você concorda com tal monitoramento.

Prosseguir